9 Parham House
£275,000
*Purchase price. Other charges apply.
 
														Overview
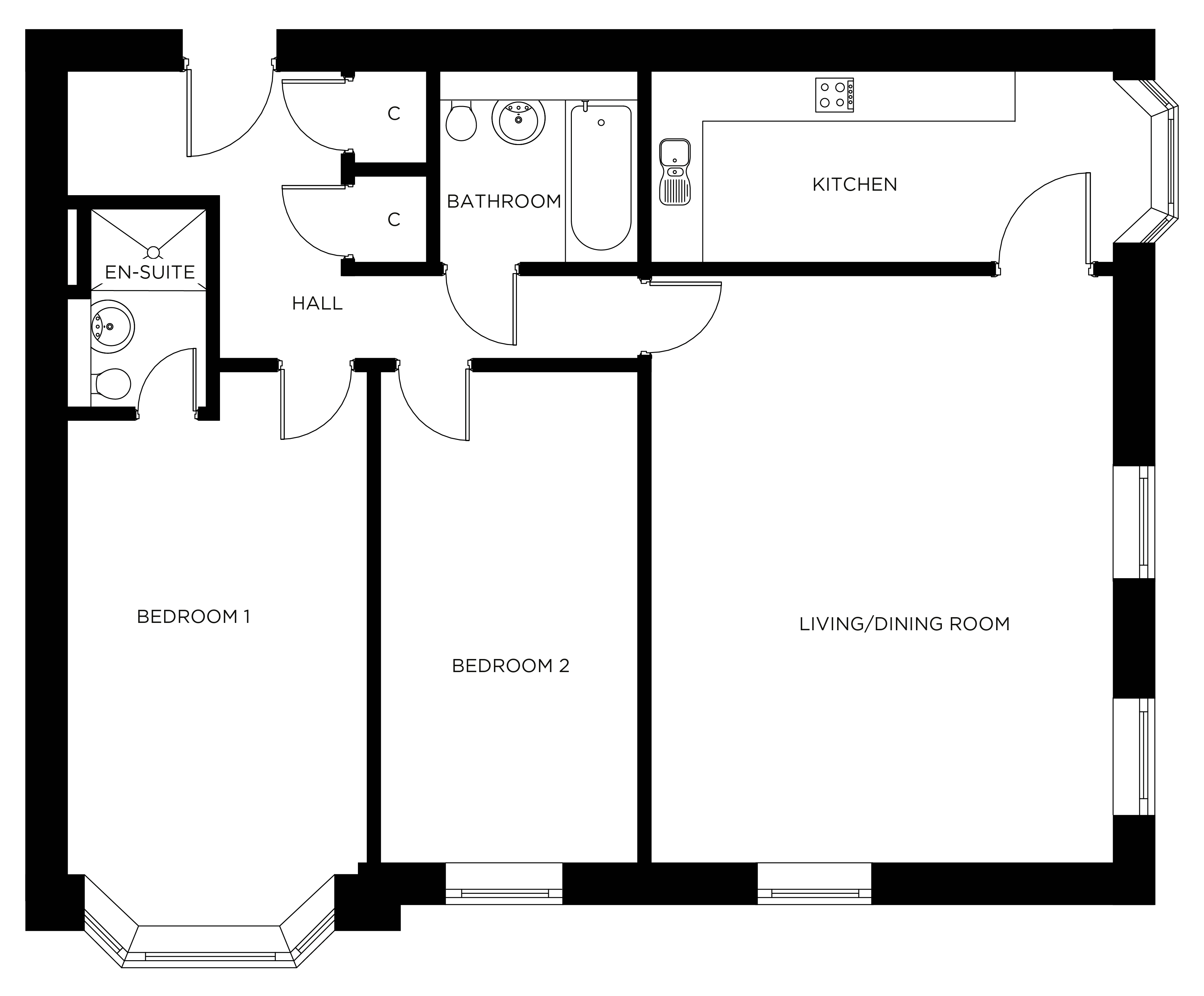
Situated in a prime location close to the Clubhouse, this property offers a bright and spacious living area, ideal for everyday comfort and entertaining.
The home features built-in cupboards for practical storage, an en-suite bathroom for convenience, and enjoys pleasant views across the village, enhancing its appeal and sense of space.
Gallery
Floorplan
 
                Location
 
									 
									Details
Kitchens
- High-quality fitted units + work surfaces throughout
- Glass splashback to hob
- Soft-close doors and drawers
- Fan-assisted oven
- Dishwasher
- Integrated washer-dryer
- Eye-level fridge with freezer
- Ceramic tile or Karndean woodstrip flooring
- LED lighting
Bathrooms
- Walk-in showers (with level access to bedroom one)
- Bath fitted in second bathroom (if applicable)
- Fully integrated bathroom cabinets
- Ceramic tiles to full height in bath and shower areas
- Ceramic wash basins
- Glass screens to shower with chrome shower controls
Lounge
- Telephone and broadband internet socket
- Sky / TV sockets
Bedrooms
- Fitted or walk-in wardrobes
- Telephone socket
- Sky / TV sockets
Internal finish
- Smooth ceilings and walls throughout, finished in emulsion paint - calico
Security
- Landscape and security lighting to all communal areas, activated by time and movement
- 24-hour emergency call system to off-site response team
- Village TV information channel
Finance
For resales
Financial information for resales
Tenure
Leasehold
Service Charge
All residents pay a contribution to the running costs of the communal village facilities, support services and maintenance of the communal buildings and grounds; this is known as the ‘service charge’.
The service charge is divided into a number of components. These cover the costs of items as detailed below. The service charge account is raised in advance and is split equally between all properties. You will only be responsible for your proportion of the service charge for your property, and we will be responsible for the service charge on any unsold or unlet properties. For the avoidance of doubt, you are still responsible for the service charge even if your property becomes vacant and is in the process of being sold. Under these circumstances, the landlord, Senior Living (Liphook) Ltd may be willing to accrue service charges until the property is sold. A copy of a typical service charge account can be obtained from the village adviser.
From 1st April 2025, the service charge will be £6,729 for the remainder of the year (£7,552.18 for double-occupancy) for Phases 1 – 3.
£6729 for the remainder of the year (£7,288.09 for double occupancy) for Phase 4 divided into monthly payments. This is a nine month service charge budget.
Ground rent
If the resale property was purchased before April 1st 2023 then ground rent may apply to your property, our sales teams will be able to provide you with that information and a complete calculation on what that means in terms of monthly expenditure.
If the resale property was purchased after April 1st 2023, there is a nominal ‘peppercorn’ rent (if demanded). In effect, no ground rent is payable.
Utilities
Utilities are billed by the service provider of your choice.
Event Fee
The event fee is calculated by reference to a percentage of the sale price. The percentages at Bramshott Place are 5% during the first 3 years of the term, 10% for the next 7 years and 15% beyond 10 years.
To gain more of an insight into what this looks like, we have provided some worked examples to show you in more detail, please see the Worked Example Sheet.
Bespoke illustrations can be provided for customers for any specific property, sale value and percentage change in value.
Disclaimer
We are committed to providing clear, accessible information and support for all prospective residents, including those who may be considered vulnerable. If you require this information in an alternative format or need additional assistance, please contact us.
We have taken every care to ensure the accuracy of this information, but you will need to refer to the legal documentation which, when made available, will cover in detail the rights and obligations of the parties, together with the commercial terms that will apply to our contracts.
We encourage you to discuss your housing options with your family and friends, and to seek independent legal, financial / benefits and any other appropriate advice, support, and representation, in connection with a move to an integrated retirement community. To help with a broader understanding of this independent retirement community, we have also added the Key Facts Sheet that gives a general overview of this community which you may find helpful.
Sales enquiries 01428 853 280
Village reception 01428 853 280
Bramshott Place, Holdenbury House, King George’s Drive, GU30 7GE
 
 
 
 
 
 
 
 
 
 
