47 The Grange

£0

*Purchase price. Other charges apply.

Second floor
Two bed
 at 47 The Grange

Overview

A beautiful modern home

Our spacious two-bedroom retirement living apartments offer the perfect balance of style and function, centrally located to ensure easy access to all village facilities.

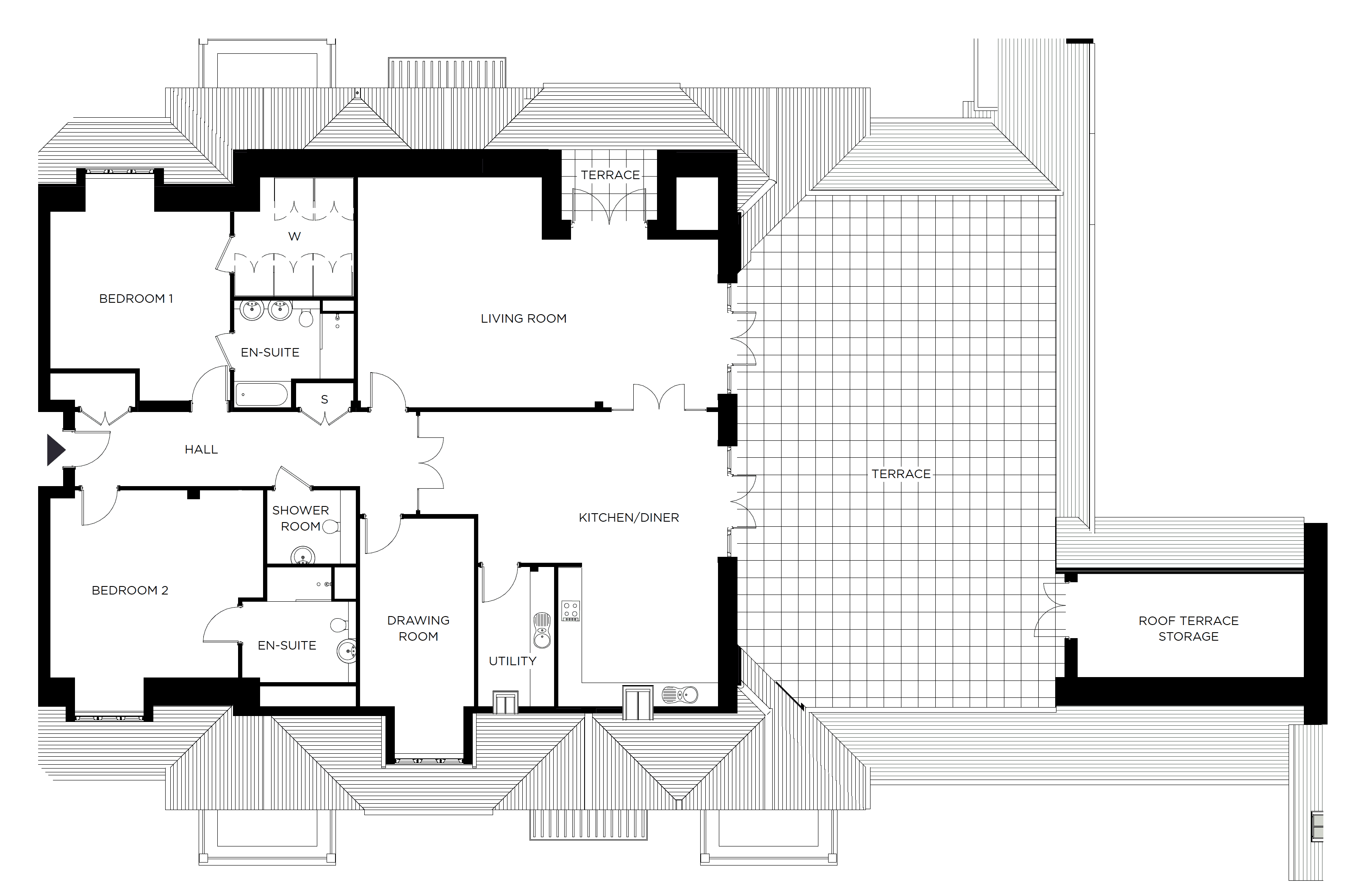
Floorplan

47 The Grange

Kitchen

7,826mm x 7,745mm

25' 9" x 25' 5"

Living

6,010mm x 9,379mm

19' 9" x 30' 10"

Bedroom 1

5,958mm x 4,718mm

19' 7" x 15' 6"

Bedroom 2

5,758mm x 5,579mm

18' 11" x 18' 4"

Ensuite 1

2,759mm x 3,150mm

9' 1" x 10' 5"

Ensuite 2

2,929mm x 3,015mm

9' 8" x 9' 11"

Bathroom

2,300mm x 1,848mm

7' 7" x 6' 1"

Drawing room

5,802mm x 2,979mm

19' 1" x 9' 10"

Utility

3,670mm x 1,970mm

12' 1" x 6' 6"

Wardrobe

3,140mm x 3,150mm

10' 4" x 10' 5"

Roof terrace

2,700mm x 5,900mm

8' 11" x 19' 5"

Patio

12,825mm x 6,200mm

42' 1" x 20' 5"

Location

2814
North

Details

Kitchens

  • High-quality fitted units + work surfaces throughout
  • Glass splashback to hob
  • Soft-close doors and drawers
  • Fan-assisted oven
  • Safe induction hob
  • Dishwasher
  • Integrated washer-dryer
  • Eye-level fridge with freezer
  • Ceramic tile or Karndean woodstrip flooring
  • LED lighting

Bathrooms

  • Walk-in showers (with level access to bedroom one)
  • Bath fitted in second bathroom (if applicable)
  • Fully integrated bathroom cabinets
  • Ceramic tiles to full height in bath and shower areas
  • Chrome towel and grab-rails
  • Ceramic wash basins
  • Glass screens to shower with chrome shower controls

Lounge

  • Telephone and broadband internet socket
  • Sky / TV sockets

Bedrooms

  • Fitted or walk-in wardrobes
  • Telephone socket
  • Sky / TV sockets

Internal finish

  • Smooth ceilings and walls throughout, finished in emulsion paint - calico

Security

  • Full 24-hour, movement activated village CCTV
  • Landscape and security lighting to all communal areas, activated by time and movement
  • Personal mobile door handset entry system
  • 24-hour emergency call system to on-site team
  • Village TV information channel

Sales enquiries 023 8008 0603

Village reception 023 8254 0110

Ampfield Meadows , The Grange, Rowan Way, North Baddesley, Southampton, SO52 9BP

Opening hours

Close
Weekday Time slot
Monday: 10:00-17:00
Tuesday: 10:00-17:00
Wednesday: 10:00-17:00
Thursday: 10:00-17:00
Friday: 10:00-17:00
Saturday: 10:00-16:00
Sunday: 10:00-16:00