48 Cherry Walk

£265,000

*Purchase price. Other charges apply.

First floor
One bed
1 bed kitchen

Overview

A beautiful modern home

The Wignall is an attractive, charming apartment with lots of appealing features. Boasting a large double bedroom with separate bathroom, and ample storage space throughout. There’s also the spacious open plan living/dining area which opens to a private terrace on one side, and a fully equipped kitchen accessed through double doors.

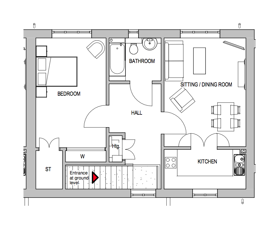
Floorplan

Floorplan

Sitting/Dining

4,940mm x 3,730mm

16' 3" x 12' 3"

Kitchen

1,800mm x 3,730mm

5' 11" x 12' 3"

Bathroom

1,950mm x 2,375mm

6' 5" x 7' 10"

Bedroom

4,927mm x 3,198mm

16' 2" x 10' 6"

Location

12
North

Details

Kitchens

  • High-quality fitted units and work surfaces throughout
  • Glass splashback to hob
  • Soft-close doors and drawers
  • Fan-assisted oven
  • Safe induction hob
  • Dishwasher
  • Integrated washer-dryer
  • Eye-level fridge with freezer
  • Ceramic tile or Karndean woodstrip flooring
  • LED lighting

Bathrooms

  • Walk-in showers (with level access to the bedroom)
  • Bath fitted in second bathroom (if applicable)
  • Fully integrated bathroom cabinets
  • Ceramic tiles to full height in bath and shower areas
  • Chrome towel and grab-rails
  • Ceramic wash basins
  • Glass screens to shower with chrome shower controls

Lounge

  • Feature fireplace, with flame-effect electric fire
  • Telephone and broadband internet socket
  • Sky / TV sockets

Bedrooms

  • Fitted or walk-in wardrobes
  • Telephone socket
  • Sky / TV sockets

Internal finish

  • Smooth ceilings and walls throughout, finished in emulsion paint - calico

Security

  • Full 24-hour movement-activated village CCTV
  • Landscape and security lighting to all communal areas, activated by time and movement
  • Personal mobile door handset entry system
  • 24-hour emergency call system to on-site care team
  • Village TV information channel

Finance

For sales

Financial information for sales

Tenure

Leasehold  

Service Charge

All residents pay a contribution to the running costs of the communal village facilities, support services and maintenance of the communal buildings and grounds; this is known as the ‘service charge’.

The service charge is divided into a number of components. These cover the costs of items as detailed below. The service charge budget is raised in advance and is split equally between all properties. You will only be responsible for your proportion of the service charge for your property, and we will be responsible for the service charge on any unsold or unlet properties. 

For the avoidance of doubt, you are still responsible for the service charge even if your property becomes vacant and is in the process of being sold. Under these circumstances, the landlord, Tattenhall Care Village LLP may be willing to accrue service charges until the property is sold.

From 1 January 2026, the annual service charge will be:
£10,000 per year for single and double occupancy ( £833.33 per month)

Ground rent

There is a nominal ‘peppercorn’ rent (if demanded). In effect, no ground rent is payable.

Utilities

Hot water and heating is generated by individual ground source heat pumps. A monthly bill will be generated based on electricity meter readings from within each apartment. Water is billed directly by the local water authority.

Event Fee

The event fee is calculated by reference to a percentage of the sale price. The percentage payable is 4% of the selling price in the first year of your ownership, 6% in year 2, 8% in year 3, 10% in year 4 and thereafter.

To gain more of an insight into what this looks like, we have provided some worked examples to show you in more detail, please see the Worked Example Sheet.

Bespoke illustrations can be provided for customers for any specific property, sale value and percentage change in value.

Disclaimer

We are committed to providing clear, accessible information and support for all prospective residents, including those who may be considered vulnerable. If you require this information in an alternative format or need additional assistance, please contact us.

We have taken every care to ensure the accuracy of this information, but you will need to refer to the legal documentation which, when made available, will cover in detail the rights and obligations of the parties, together with the commercial terms that will apply to our contracts.

We encourage you to discuss your housing options with your family and friends, and to seek independent legal, financial / benefits and any other appropriate advice, support, and representation, in connection with a move to an integrated retirement community. To help with a broader understanding of this independent retirement community, we have also added the Key Facts Sheet that gives a general overview of this community which you may find helpful.

Sales enquiries 01829 289 124

Village reception 01829 773 645

Gifford Lea, The Grange, Davenport Close, Tattenhall, Cheshire, CH3 9FQ

Opening hours

Close
Weekday Time slot
Monday: 9:30-16:30
Tuesday: 9:30-16:30
Wednesday: 9:30-16:30
Thursday: 9:30-16:30
Friday: 9:30-16:30
Saturday: 10:00-16:00
Sunday: 10:00-16:00