1 Millbrook House
£525,000
*Purchase price. Other charges apply.
 
                Overview
A spacious ground floor apartment offering excellent accessibility and comfort throughout. The property benefits from secure undercroft parking and a generously sized open-plan living and dining area, ideal for both everyday living and entertaining.
A standout feature is the wraparound patio, providing ample outdoor space for relaxing, gardening or alfresco dining.
Gallery
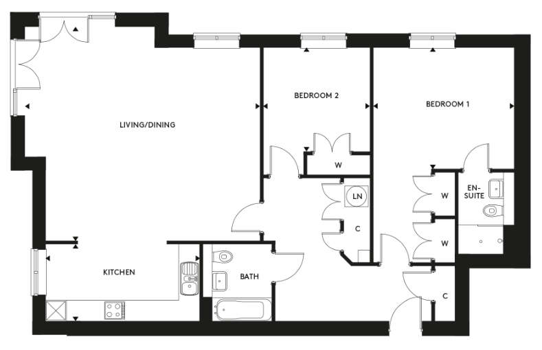
Floorplan
 
                Sitting/Dining Room
6,780mm x 6,150mm
22' 3" x 20' 3"
Kitchen
4,440mm x 2,220mm
14' 7" x 7' 4"
Bedroom 1
4,040mm x 3,490mm
13' 4" x 11' 6"
Bedroom 2
3,060mm x 2,990mm
10' 1" x 9' 10"
Location
 
									 
									Details
Kitchens
- High-quality fitted units + work surfaces throughout
- Glass splashback to hob
- Soft-close doors and drawers
- Fan-assisted oven
- Dishwasher
- Integrated washer-dryer
- Eye-level fridge with freezer
- Ceramic tile or Karndean woodstrip flooring
- LED lighting
Bathrooms
- Bath fitted in first bathroom
- Walk-in shower in second bathroom (if applicable)
- Fully integrated bathroom cabinets
- Ceramic tiles to full height in shower areas
- Ceramic wash basins
- Glass screens to shower with chrome shower controls
Lounge
- Telephone and broadband internet socket
- Sky / TV sockets
Bedrooms
- Fitted or walk-in wardrobes
- Telephone socket
- Sky / TV sockets
Internal finish
- Smooth ceilings and walls throughout, finished in emulsion paint
Finance
For resales
Financial information for resales
Tenure
Leasehold
Service Charge
All residents pay a contribution to the running costs of the communal village facilities, support services and maintenance of the communal buildings and grounds; this is known as the ‘service charge’.
The service charge is divided into a number of components. These cover the costs of items as detailed below. The service charge account is raised in advance and is split equally between all properties. You will only be responsible for your proportion of the service charge for your property, and we will be responsible for the service charge on any unsold or unlet properties. For the avoidance of doubt, you are still responsible for the service charge even if your property becomes vacant and is in the process of being sold. Under these circumstances, the landlord, Senior Living (Exeter) Ltd may be willing to accrue service charges until the property is sold. A copy of a typical service charge account can be obtained from the village adviser.
The service charge will be £8,743 per year (£9,262 for double-occupancy) divided into quarterly payments of £2,185.75 (£2,315.50 for double-occupancy).
Ground rent
If the resale property was purchased before April 1st 2023 then ground rent may apply to your property, our sales teams will be able to provide you with that information and a complete calculation on what that means in terms of monthly expenditure.
If the resale property was purchased after April 1st 2023, there is a nominal ‘peppercorn’ rent (if demanded). In effect, no ground rent is payable.
Utilities
Electricity is charged direct from your provider of choice. Heating and hot water charged billed monthly to each property by the management company.
Event Fee
The event fee is calculated by reference to a percentage of the sale price. The percentages at Millbrook Village Village are 5% during the first 3 years of the term, 10% thereafter.
To gain more of an insight into what this looks like, we have provided some worked examples to show you in more detail, please see the Worked Example Sheet.
Bespoke illustrations can be provided for customers for any specific property, sale value and percentage change in value.
Disclaimer
We are committed to providing clear, accessible information and support for all prospective residents, including those who may be considered vulnerable. If you require this information in an alternative format or need additional assistance, please contact us.
We have taken every care to ensure the accuracy of this information, but you will need to refer to the legal documentation which, when made available, will cover in detail the rights and obligations of the parties, together with the commercial terms that will apply to our contracts.
We encourage you to discuss your housing options with your family and friends, and to seek independent legal, financial / benefits and any other appropriate advice, support, and representation, in connection with a move to an integrated retirement community. To help with a broader understanding of this independent retirement community, we have also added the Key Facts Sheet that gives a general overview of this community which you may find helpful.
 
 
 
 
 
 
 
 
