5 Teal Way

£425,000

*Purchase price. Other charges apply.

Ground First floor
Two bed
Three baths
5 Teal Way

Overview

This apartment benefits from a private south-west-facing patio area, offering plenty of afternoon and evening sun. The kitchen is self-contained, with doors that can be closed off from the lounge to create separation when needed. Additionally, a Juliet balcony enhances the living space with fresh air and natural light.

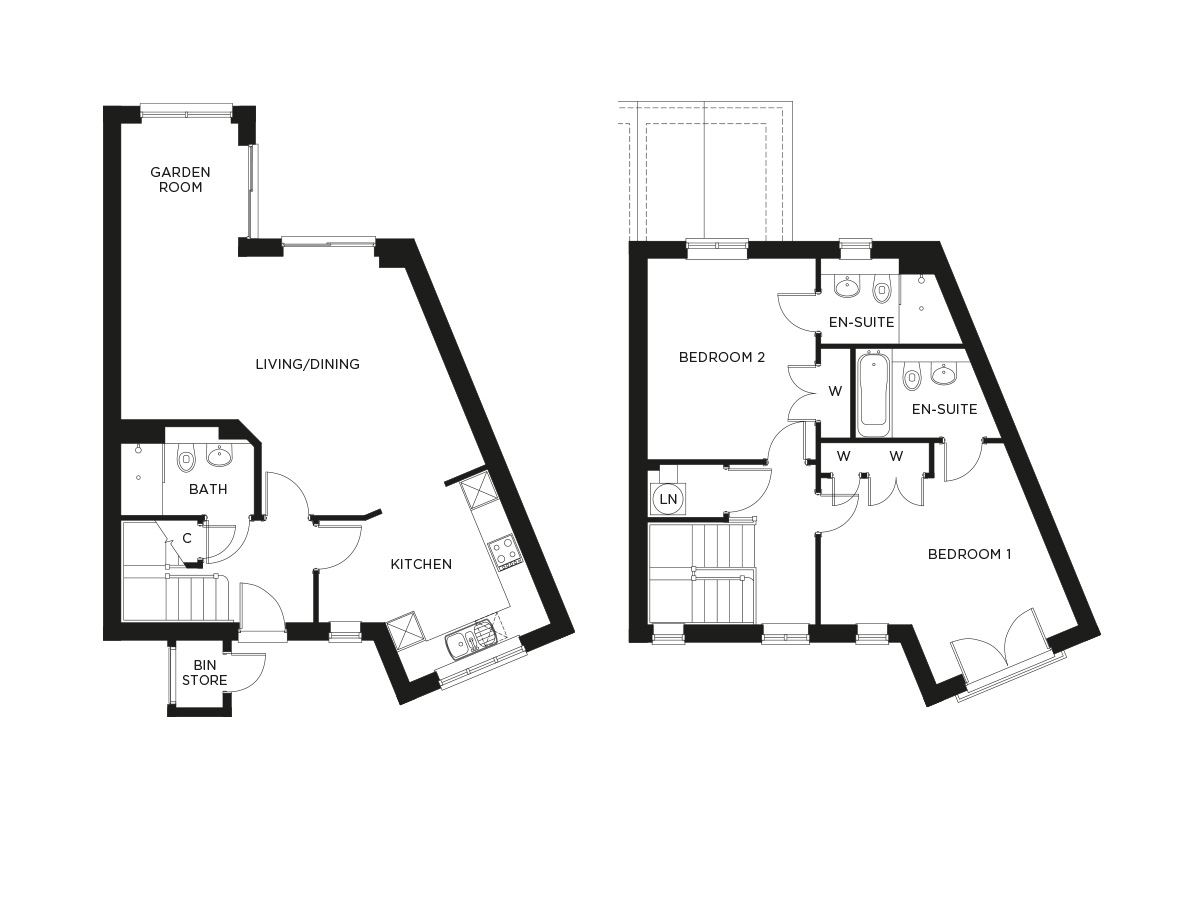
Floorplan

Floorplan

Kitchen

2,930mm x 3,160mm

9' 8" x 10' 5"

Living/Dining Room

5,430mm x 4,920mm

17' 10" x 16' 2"

Bedroom 1

2,940mm x 3,740mm

9' 8" x 12' 4"

Bedroom 2

3,220mm x 3,820mm

10' 7" x 12' 7"

Garden Room

2,240mm x 2,490mm

7' 5" x 8' 3"

Location

32
North

Details

Kitchens

  • High-quality fitted units + work surfaces throughout
  • Glass splashback to hob
  • Soft-close doors and drawers
  • Fan-assisted oven
  • Dishwasher
  • Integrated washer-dryer
  • Eye-level fridge with freezer
  • Ceramic tile or Karndean woodstrip flooring
  • LED lighting

Bathrooms

  • Bath fitted in first bathroom
  • Walk-in shower in second bathroom (if applicable)
  • Fully integrated bathroom cabinets
  • Ceramic tiles to full height in shower areas
  • Ceramic wash basins
  • Glass screens to shower with chrome shower controls

Lounge

  • Telephone and broadband internet socket
  • Sky / TV sockets

Bedrooms

  • Fitted or walk-in wardrobes
  • Telephone socket
  • Sky / TV sockets

Internal finish

  • Smooth ceilings and walls throughout, finished in emulsion paint

Finance

For resales

Financial information for resales

Tenure

Leasehold 

Service Charge

All residents pay a contribution to the running costs of the communal village facilities, support services and maintenance of the communal buildings and grounds; this is known as the ‘service charge’.

The service charge is divided into a number of components. These cover the costs of items as detailed below. The service charge account is raised in advance and is split equally between all properties. You will only be responsible for your proportion of the service charge for your property, and we will be responsible for the service charge on any unsold or unlet properties. For the avoidance of doubt, you are still responsible for the service charge even if your property becomes vacant and is in the process of being sold. Under these circumstances, the landlord, Senior Living (Exeter) Ltd may be willing to accrue service charges until the property is sold. A copy of a typical service charge account can be obtained from the village adviser.

From 1 January 2026, the annual service charge will be:
£10,066 per year for single occupancy (£838.83 per month)
£10,663 per year for double occupancy ( £888.58 per month)

Ground rent

If the resale property was purchased before April 1st 2023 then ground rent may apply to your property, our sales teams will be able to provide you with that information and a complete calculation on what that means in terms of monthly expenditure.

If the resale property was purchased after April 1st 2023, there is a nominal ‘peppercorn’ rent (if demanded). In effect, no ground rent is payable.

Utilities

Electricity is charged direct from your provider of choice. Heating and hot water charged billed monthly to each property by the management company.

Event Fee

The event fee is calculated by reference to a percentage of the sale price. The percentages at Millbrook Village Village are 5% during the first 3 years of the term, 10% thereafter.

To gain more of an insight into what this looks like, we have provided some worked examples to show you in more detail, please see the Worked Example Sheet.

Bespoke illustrations can be provided for customers for any specific property, sale value and percentage change in value.

Disclaimer

We are committed to providing clear, accessible information and support for all prospective residents, including those who may be considered vulnerable. If you require this information in an alternative format or need additional assistance, please contact us.

We have taken every care to ensure the accuracy of this information, but you will need to refer to the legal documentation which, when made available, will cover in detail the rights and obligations of the parties, together with the commercial terms that will apply to our contracts.

We encourage you to discuss your housing options with your family and friends, and to seek independent legal, financial / benefits and any other appropriate advice, support, and representation, in connection with a move to an integrated retirement community. To help with a broader understanding of this independent retirement community, we have also added the Key Facts Sheet that gives a general overview of this community which you may find helpful.

Sales enquiries 01392 455 800

Millbrook, Springbok Hall, Turnstone Road, Exeter, Devon, EX2 6FD

Opening hours

Close