30 Great Alne Park

£622,500

*Purchase price. Other charges apply.

Ground First floor
Three bed
Two baths
Living Room at 30 Great Alne Park

Overview

This beautiful house features a versatile open-plan living space next to the fully equipped kitchen. An en suite master bedroom is supplemented by a second en suite double bedroom, third bedroom and separate shower-room, giving the flexibility to entertain guests all year round. An entrance with ample storage flows into an interior complete with the very latest fixtures, fittings and appliances.

 

Images shown are of Inspired Villages properties and may not depict the specific property advertised.

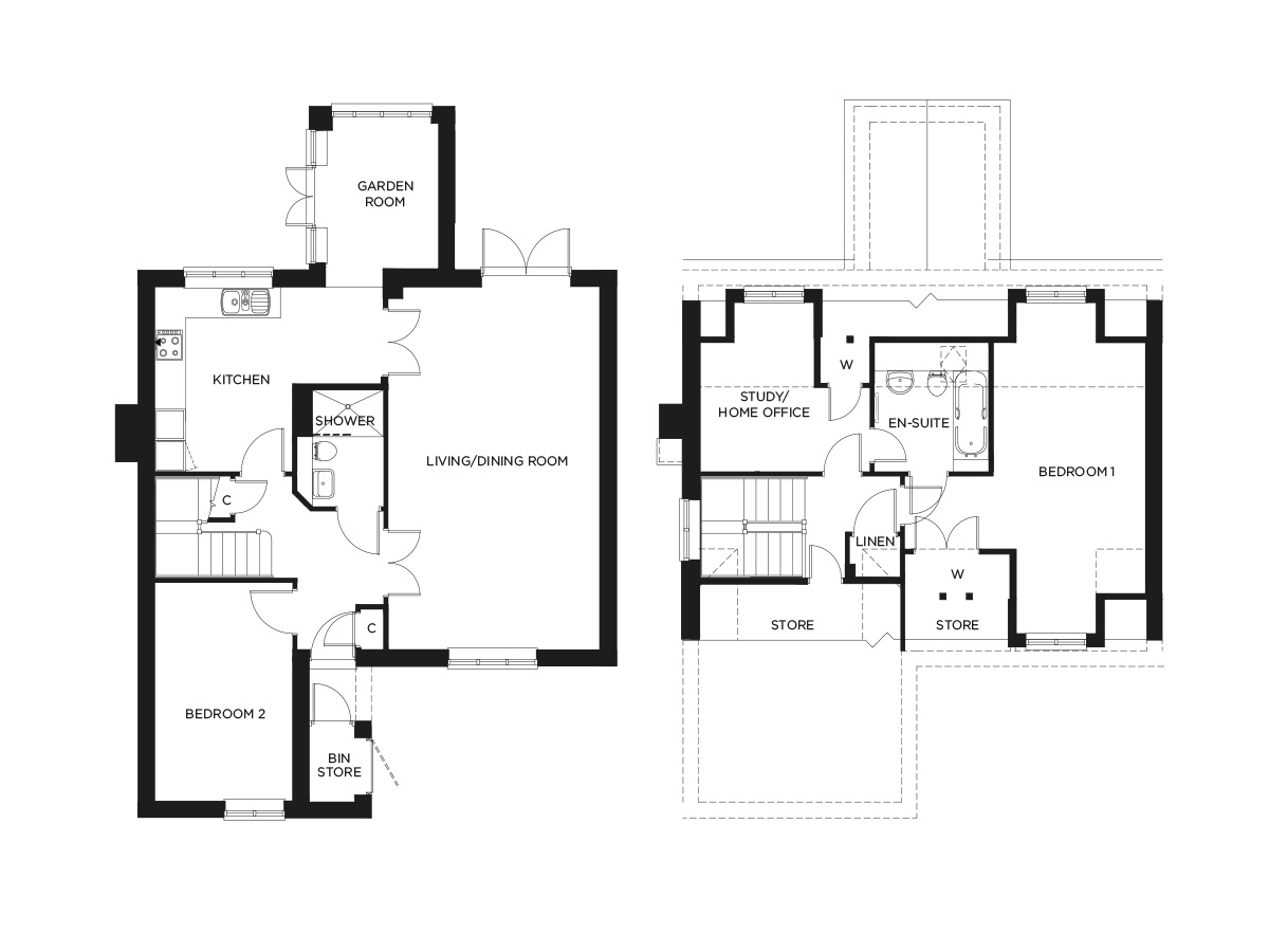
Floorplan

Floorplan

Kitchen

4,440mm x 3,510mm

14' 7" x 11' 7"

Living/Dining Room

4,120mm x 6,930mm

13' 7" x 22' 9"

Bedroom 1

2,940mm x 4,780mm

9' 8" x 15' 9"

Bedroom 2

2,660mm x 4,150mm

8' 9" x 13' 8"

Study/Home Office

3,290mm x 2,450mm

10' 10" x 8' 1"

Location

33
North

Details

Kitchens

  • Stylish designer kitchens by Alno AG Group
  • Composite stone worktops with upstand (excepting utility rooms)
  • A range of high quality integrated electric appliances including an oven, combination microwave, hob, extractor hood, fridge/freezer, washer/dryer and dishwasher
  • Stainless steel sink and ceramic floor tiles

Finishing Touches

  • Painted panelled doors (cottages) or oak veneered flush doors (apartments) with elegant brushed metal door furniture
  • Bedrooms feature built-in wardrobes, where indicated
  • Profiled skirting boards and architraves with a satin finish
  • Cornices or coving to selected rooms
  • Smooth, white-painted ceilings

Energy Efficiency

  • All new homes will be highly energy efficient; the external walls and roof having been designed to high thermal efficiency standards
  • The properties benefit from an energy efficient ventilation system

Bathrooms

  • Elegant white sanitaryware from Villeroy & Boch and Kaldewei
  • Complementary fittings by Hansgrohe
  • Ceramic wall tiling; full-height to shower rooms and half-height to bathrooms
  • Ceramic floor tiles
  • Fitted mirrored cabinet
  • Electric shaver point

Heating & Electrics

  • Electric air source heat pump system providing under floor heating and hot water
  • Chrome heated towel rails in bathrooms, wet rooms and shower rooms
  • Supplementary domestic hot water heating by means of an immersion heater
  • Double-glazed windows throughout
  • External light and door bell
  • Wiring and television points compatible for use with Freeview and Satellite TV including Sky Multi-room
  • Ample power, television and telephone points, strategically placed throughout the properties

Security & Peace of Mind

  • Mains smoke detectors with battery back-up
  • Independent call alarm system linked to Manager’s office within designated hours. Linked to UK out of hours call centre outside these times
  • NHBC 10-year Buildmark warranty

Finance

For sales

Financial information for sales

Tenure

Leasehold 

Service Charge

All residents pay a contribution to the running costs of the communal village facilities, support services and maintenance of the communal buildings and grounds; this is known as the ‘service charge’.

The service charge is divided into a number of components. The service charge budget is raised in advance and is split equally between all properties. You will only be responsible for your proportion of the service charge for your property, and we will be responsible for the service charge on any unsold or unlet properties.

From 1 January 2026, the annual service charge will be:
£10,475 per year for single occupancy ( £872.92 per month)
£11,119 per year for double occupancy (£926.58 per month)

Ground rent

There is a nominal ‘peppercorn’ rent (if demanded). In effect, no ground rent is payable.

Utilities

The utility services are metered and charged to individual properties on a monthly basis, as would be the case in any property. Utility providers are selected by residents. Water is billed direct by the provider.

Event Fee

The event fee is calculated by reference to a percentage of the sale price. The percentage payable is 5% of the selling price in the first three years of your ownership, 10% in year 4 and thereafter.

Buyers also have the option instead of paying the event fee as an agreed percentage (currently set at 10%) of the purchase price prior to the completion of the purchase.

To gain more of an insight into what this looks like, we have provided some worked examples to show you in more detail, please see the Great Alne Park Event Fee – Worked Example Sheet below.

Bespoke illustrations can be provided for customers for any specific property, sale value and percentage change in value.

Disclaimer

We are committed to providing clear, accessible information and support for all prospective residents, including those who may be considered vulnerable. If you require this information in an alternative format or need additional assistance, please contact us.

We have taken every care to ensure the accuracy of this information, but you will need to refer to the legal documentation which, when made available, will cover in detail the rights and obligations of the parties, together with the commercial terms that will apply to our contracts.

We encourage you to discuss your housing options with your family and friends, and to seek independent legal, financial / benefits and any other appropriate advice, support, and representation, in connection with a move to an integrated retirement community. To help with a broader understanding of this independent retirement community, we have also added the Key Facts Sheet that gives a general overview of this community which you may find helpful.

For rentals

Financial information for rentals

Tenure

Assured Short term Tenancy (AST) 

Tenancy Deposit

A tenancy deposit equal to 5 weeks’ rent prior to the start date. The tenancy deposit will be lodged with the Tenancy Deposit Protection Scheme, administered by The Dispute Service Ltd. Further details of the scheme can be found at www.tenancydepositscheme.com

Rental Amount

At Great Alne Park, the rent can range between £1,713 pcm to £4,318 pcm, depending on the property. The rent will increase annually in line with the Consumer Price Index + 1%.

Bespoke illustrations can be provided for customers for any specific property, sale value and percentage change in value. 

To gain more of an insight into what this looks like, please see our Key Facts Rental document for more information.

Service Charge

All residents pay a contribution to the running costs of the communal village facilities, support services and maintenance of the communal buildings and grounds; this is known as the ‘service charge’.

The service charge is divided into a number of components. The service charge budget is raised in advance and is split equally between all properties. You will only be responsible for your proportion of the service charge for your property, and we will be responsible for the service charge on any unsold or unlet properties.

From 1 January 2026, the annual service charge will be:
£10,475 per year for single occupancy ( £872.92 per month)
£11,119 per year for double occupancy (£926.58 per month)

Ground rent

N/A

Utilities

The utility services are metered and charged to individual properties on a monthly basis, as would be the case in any property. Utility providers are selected by residents. Water is billed direct by the provider.

Disclaimer

We are committed to providing clear, accessible information and support for all prospective residents, including those who may be considered vulnerable. If you require this information in an alternative format or need additional assistance, please contact us.

We have taken every care to ensure the accuracy of this information, but you will need to refer to the legal documentation which, when made available, will cover in detail the rights and obligations of the parties, together with the commercial terms that will apply to our contracts.

We encourage you to discuss your housing options with your family and friends, and to seek independent legal, financial / benefits and any other appropriate advice, support, and representation, in connection with a move to an integrated retirement community. To help with a broader understanding of this independent retirement community, we have also added the Key Facts Sheet that gives a general overview of this community which you may find helpful.

Sales enquiries 01789 488 901

Village reception 01789 489 100

Great Alne Park, Henley Road, Great Alne, Alcester, Warwickshire, B49 6HX

Opening hours

Close
Weekday Time slot
Monday: 10:00-17:00
Tuesday: 10:00-17:00
Wednesday: 10:00-17:00
Thursday: 10:00-17:00
Friday: 10:00-17:00
Saturday: 10:00-16:00
Sunday: Closed